Kompetenz im Brandschutz

Druckerhöhungsanlage mit Vorlagebehälter maximat MX1

Wahlweise mit Behälter aus verzinktem Stahl oder aus PE 8152 schwarz

Die Druckerhöhungsanlage mit Vorlage­behälter maximat MX1 ist eine autarke Lösch­anlage, die indi­vi­duell an jede An­for­derung ange­passt werden kann.

Der Vorlagebehälter ist sowohl in Kunstoff als auch in verzinktem Stahl lieferbar. Bei Ver­wen­dung des Stahl­behälters ist der Ein­satz auch in brand­ge­fähr­deten Bereichen möglich.

Produkt

  • Beim Einsatz dieses Lösch­was­ser­sys­tems ist die Lösch­was­ser­lei­tung „nass” (mit Lösch­was­ser ge­füllt) in­di­rekt über einen offe­nen Vor­la­ge­be­häl­ter mit frei­em Aus­lauf an das Trink­was­ser­netz an­ge­schlos­sen. Im Ernst­fall wird bei Be­tä­ti­gung des Schlauch­an­schluss­ven­tils eines Wand­hy­dran­ten (Lösch­was­ser­an­for­de­rung) die Druck­er­hö­hungs­an­la­ge ge­star­tet und die Wand­hy­dran­ten­an­la­ge mit der er­for­der­li­chen Was­ser­men­ge bei kon­ti­nu­ier­li­chem Druck ver­sorgt.
  • Die stätige Bypass-Re­ge­lung er­mög­licht, selbst ge­ringe Lösch­was­ser­men­gen zu för­dern und die An­la­ge gegen Über­hit­zung zu schützen. Bei Lösch­was­ser­ab­na­hme ab 100 l/min schaltet die An­lage nicht aus; somit ist die Lösch­be­reit­schaft jeder­zeit ge­ge­ben. Durch den serien­mä­ßig ver­bau­ten Probe­lauf werden Stö­run­gen früh­zei­tig er­kannt und ge­meldet.
Druckerhöhungsanlage mit Vorlagebehälter maximat MX1

Zwei Vorlagebehälter-Varianten

  • Das DVGW-zer­ti­fi­zier­te Schwim­mer­ven­til ga­ran­tiert im Lösch­fall große Aus­fluss­ra­ten bei ge­rin­gem Druck­ver­lust so­wie ge­rin­gen Druck­schwan­kun­gen und stellt so­mit die mit­tel­ba­re Ver­bin­dung vom Trink­was­ser­netz zur Feuer­lösch­an­lage her.
  • Nach Beendi­gung der Lösch­was­ser­an­for­de­rung (Schlie­ßung des Schlauch­an­schluss­ven­tils) stellt sich die Pumpe auto­ma­tisch in den Be­reit­schafts­zu­stand zurück.

Einsatz

  • Die Druck­­erhö­hungs­­an­lage mit Vor­­la­ge­­be­häl­ter maximat MX1 ist so­wohl im Be­reich der Neu­­in­stal­la­tion als auch zur System­­tren­nung von be­ste­hen­den Lösch­­was­ser­­an­la­gen gemäß DIN 14462 und DIN 1988­-600 ein­­setz­bar.
  • Typische Anwendung:
    • Löschwasserentnahmestelle
    • Wandhydranten
    • Über- und Unterflurhydranten
    • Schlauchanschlussarmaturen
    • Monitore
  • Typische Einsatz­gebiete ohne Frost­­gefährdung sind:­
    • Hochhäuser­
    • Versammlungsstätten­
    • Krankenhäuser­
    • Verkaufsstätten­
    • Bürohäuser­
    • Schulen
  • Die Auslegung erfolgt jeweils ob­jektbezogen unter Berück­sichtigung der Rohr­netz­isometrie, dem daraus resultierenden rechnerischen Nach­weis und allen weiteren technischen Anforderungen.

Ihre Vorteile

  • Langlebigkeit aufgrund hochwertiger Materialien
  • Durch Verbesserung der Einschaltvariante wird ein kleinerer Bemessungsstrom der elektrischen Absicherung und ein kleinerer Querschnitt des Kabels zur Anlage erreicht. Dadurch werden die Installationskosten der Anlage deutlich reduziert.
  • Schaltschrank gemäß DIN EN 61439 mittels Lüfter gegen Überhitzung geschützt.
  • Redundante Ausführung möglich
  • Die modulare Aufbauweise ermöglicht eine hohe Flexibilität in der Instal­lationsphase bei minimalem Raum­bedarf. Der Zugang ist auf eine Seite beschränkt, daher optimale Raum­ausnutzung
  • Einfachere Sachverständigenabnahme durch normkonforme und DVGW-­zertifizierte Komponenten*
  • Die strömungsgünstige Konstruktion des Schwimmerventils stellt große Ausflussraten bei geringem Druck­verlust sicher
  • Schädliche Schwingungen und Druck­stöße im Rohrnetz werden durch die hohe Massenträgheit des Schwim­mers und die Verwendung einer Absperrklappe als Zuflussregelarmatur verhindert.
  • Ein speziell für diesen Einsatzfall ent­wickelter Schaltschrank mit potenzial­freien Kontakten und Überwachungs-­ und Weitermeldungsmöglichkeit an die Gebäudeleittechnik
  • Hohe Wartungsfreundlichkeit durch gute Zugänglichkeit aller Armaturenund Schaltelemente

Hinweis

Druckerhöhungsanlage maximat MX1 beugt möglichen hohen Kosten für Elektroinstallation vor

Mit der Ausgabe 07/2023 ist die Norm DIN 14462 erheblich umfangreicher geworden und umfasst nun 75 statt zuvor 41 Seiten. Ein wesentlicher Bestandteil dieser Erweiterung ist die Einführung des Kapitels 4.8.3, das die Anforderungen an die Energieversorgung von Druckerhöhungsanlagen definiert.

Wesentliche Änderungen und ihre Auswirkungen

  • 1. Dreimaliger Start der Pumpenanlage:

Die Norm fordert, dass die Sicherungen der Druckerhöhungsanlage einem dreimaligen Start der Pumpen hintereinander standhalten müssen. Dies berücksichtigt zum einen die im Brandfall typischen Spannungsschwankungen und zum anderen die Umschaltvorgänge vom Normalnetzbetrieb zum Netzersatzbetrieb, die mehrmalige Schaltvorgänge der Druckerhöhungsanlage verursachen.

  • 2. Herausforderungen für die Elektroinstallation:

Energiestarke Einschaltvorgänge, wie der Direktanlauf von Pumpen oder Stern-Dreieck-Schaltungen, stellen den Elektrofachplaner vor neue Herausforderungen. Einschaltströme können mehr als 830 % der Nennstromstärke erreichen. Die Sicherungen müssen diese Stromstärken dreimal hintereinander in Folge abdecken können – was die eigentlichen Betriebsanforderungen erheblich übersteigt. Die hierfür notwendigen Sicherungen erfordern also eine entsprechend hoch dimensionierte Zuleitung (Erhöhung des Leitungsquerschnitts). Schlimmstenfalls ist die vorhanden E-Installation nicht ausreichend dimensioniert. Für hohe Leitungsquerschnitte können die vorhandenen Anschlussklemmen in der Pumpensteuerung zu klein ausgelegt sein.

3. Redundante Druckerhöhungsanlagen:

Besonders komplex wird die Planung bei redundanten Doppelpumpenanlagen, die gleichzeitig in Betrieb gehen können (Gleichzeitigkeitsfaktor 2). Dies erfordert einen erheblichen Installationsaufwand, um die hohen Anlaufströme abzudecken.

Diese neuen Anforderungen haben weitreichende Folgen für die Planung und Installation von Druckerhöhungsanlagen und erfordern eine sorgfältige Auswahl und Dimensionierung der Komponenten.

Lösung: maximat MX1 und MX2

Die DIN 14462 erlaubt alle gängigen Anlaufverfahren, auch solche, bei denen ein Frequenzumrichter zum Einsatz kommt. Jedoch sind nicht alle Frequenzumrichter geeignet, um die Pumpe bei möglichen Störungen im Brandfall – wie Überlast oder Phasenausfall – weiterbetreiben zu können. Die Druckerhöhungsanlagen maximat MX1 und maximat MX2 der Minimax Mobile Services GmbH bieten einen sanften Start, der die mechanische Belastung reduziert und eine Planung der Elektroinstallation auf Basis der Betriebsströme ermöglicht.

So können Sie einer unerwarteten Kostenexplosion bei der Elektroinstallation vorbeugen.



Funktion

maximat MX1 mit Stahl-Vorlagebehälter

Skizze Druckerhöhungsanlage mit Vorlagebehälter aus verzinktem Stahl

Technische Daten

maximat MX1 mit Vorlagebehälter aus verzinktem Stahl

  • Behälter drucklos, aus verzinktem Stahl geschweißt
  • Bei 600 L Nutzinhalt: L 1500 x B 700 x H 1140 mm
  • Schwimmerventil VdS­-anerkannt und DVGW-­zertifiziert mit KV-Wert (l/min) 1000 Nenndruck PN10
  • VdS­-Anerkennungs-Nr.: G-4880060/ G-4960035
    *DVGW-­Registrierungs-Nr: DW­-0903AQ2013 für Schwimmerventil

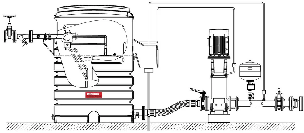
Skizze Druckerhöhungsanlage mit PE-Vorlagebehälter

Druckerhöhungsanlage maximat MX1 mit PE-Vorlagebehälter

Skizze Druckerhöhungsanlage mit PE-Vorlagebehälter

Technische Daten

maximat MX1 mit PE-Vorlagebehälter

  • Behälter aus PE 8152 schwarz ähnl. RAL 9005 gefertigt
  • Bei 600 L Nutzinhalt: L 1660 x B 700 x H 1700
  • Schwimmerventil VdS­-anerkannt und DVGW-­zertifiziert mit KV-Wert (l/min) 1000 Nenndruck PN10
  • VdS­-Anerkennungs-Nr.: G­-4880060/ G-­4960035 für Schwimmerventil
    *DVGW-­Registrierungs-Nr: DW­-0903AQ2013 für Schwimmerventil

Download Produktdatenblätter

  • Produktdatenblatt Druckerhöhungsanlage mit Vorlagebehälter aus verzinktem Stahl - maximat
    Druckerhöhungsanlage mit Vorlagebehälter aus verzinktem Stahl - maximat (pdf)
  • Produktdatenblatt Druckerhöhungsanlage mit Kunststoff-Vorlagebehälter - maximat MX1
    Druckerhöhungsanlage mit Kunststoff-Vorlagebehälter - maximat MX1 (pdf)

Business Unit Löschwassertechnik

Kompetente Sachkundige stehen Ihnen zu allen Fragen aus dem Bereich der Löschwassertechnik zur Verfügung.

Business Unit Löschwassertechnik
Wilhelm-Bergner-Str. 15
21509 Glinde

Telefon: (0 40) 25 19 66-88
Telefax: (0 40) 25 19 66-19

loeschwassertechnik@minimax.de

Kontakt